Ihre Projekte, mein Fokus.

Externe Planungsunterstützung für Architekturprojekte – strukturiert und verlässlich.


Strukturierte und sorgfältig ausgearbeitete Planunterlagen für Architekturprojekte – von der Baueingabe über Ausschreibung bis zur Ausführung.

Ich unterstütze Architekturbüros und Bauherren in verschiedenen Planungsphasen – mit technischem Verständnis, Überblick und einer klaren Arbeitsweise.

Ob Neubau, Umbau oder Sanierung – jedes Projekt verdient Aufmerksamkeit, Präzision und Verlässlichkeit.
So entsteht eine solide Grundlage für gute Architektur.

Baueingaben

Erstellung fachgerechter Baueingabepläne gemäss kantonalen und kommunalen Vorgaben. Übersichtlich strukturierte Unterlagen unterstützen einen möglichst reibungslosen Bewilligungsprozess.

Ausschreibung und Ausführung

Erarbeitung von Ausschreibungsunterlagen, Baubeschrieben sowie SIA-konformen Ausführungsplänen. Sorgfältig aufgebaut und präzise ausgearbeitet – als verlässliche Grundlage für Submission und Bauausführung.

Plan-Digitalisierung

Überarbeitung und Digitalisierung bestehender Pläne zu sauberen, strukturierten CAD-Dateien – für Umbauten, Archivierung oder Weiterbearbeitung.

Käuferbetreuung & Koordination

Begleitung von Käuferinnen und Käufern in verschiedenen Planungsphasen – verständlich und mit Blick fürs Wesentliche. Prüfung von Grundrissen und Varianten sowie Beratung zu Machbarkeit und Technik. Koordination mit beteiligten Fachplanern für klare und fundierte Entscheidungen.

Interior Design

Gestaltung von Innenräumen mit Blick auf Funktion, Proportion und Materialität. Ziel sind stimmige Räume, die im Alltag überzeugen.

Referenzen

Hier finden Sie eine Auswahl meiner aktuellen Projekte und CAD-Planungen.

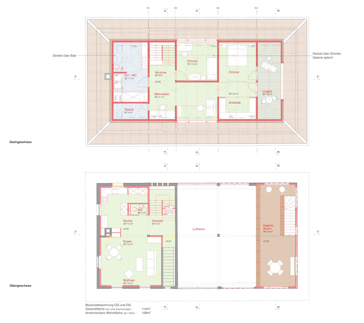
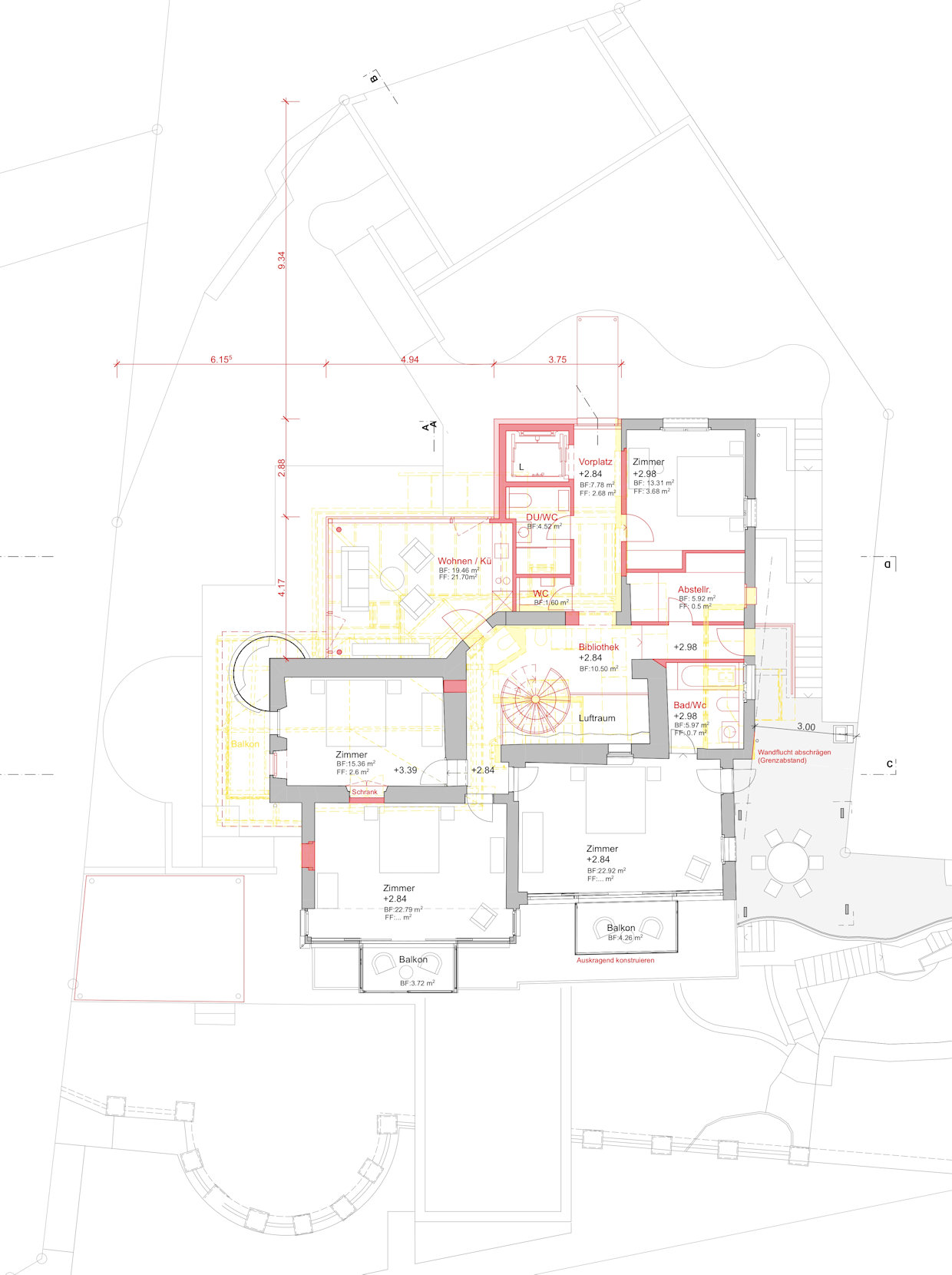
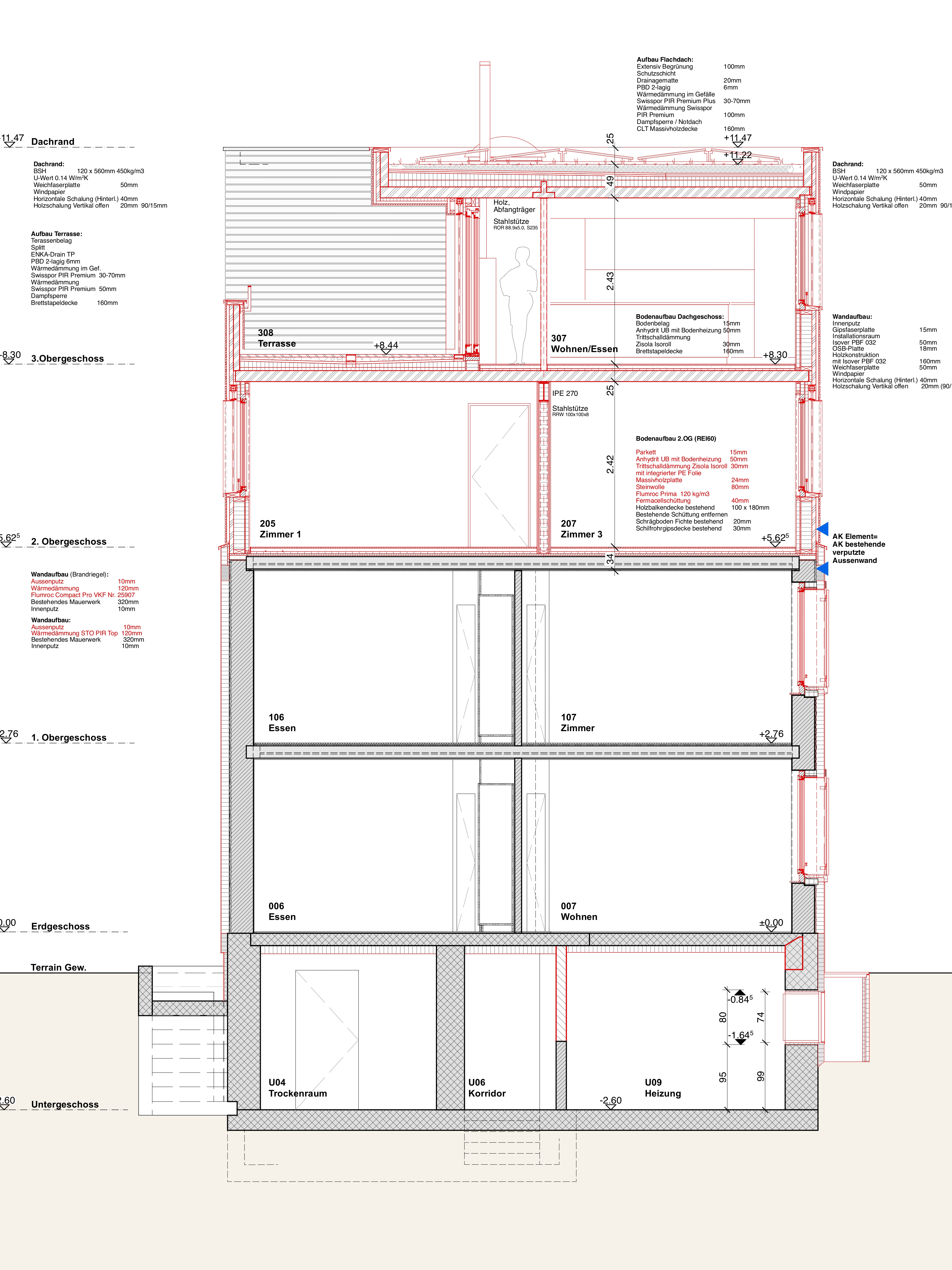
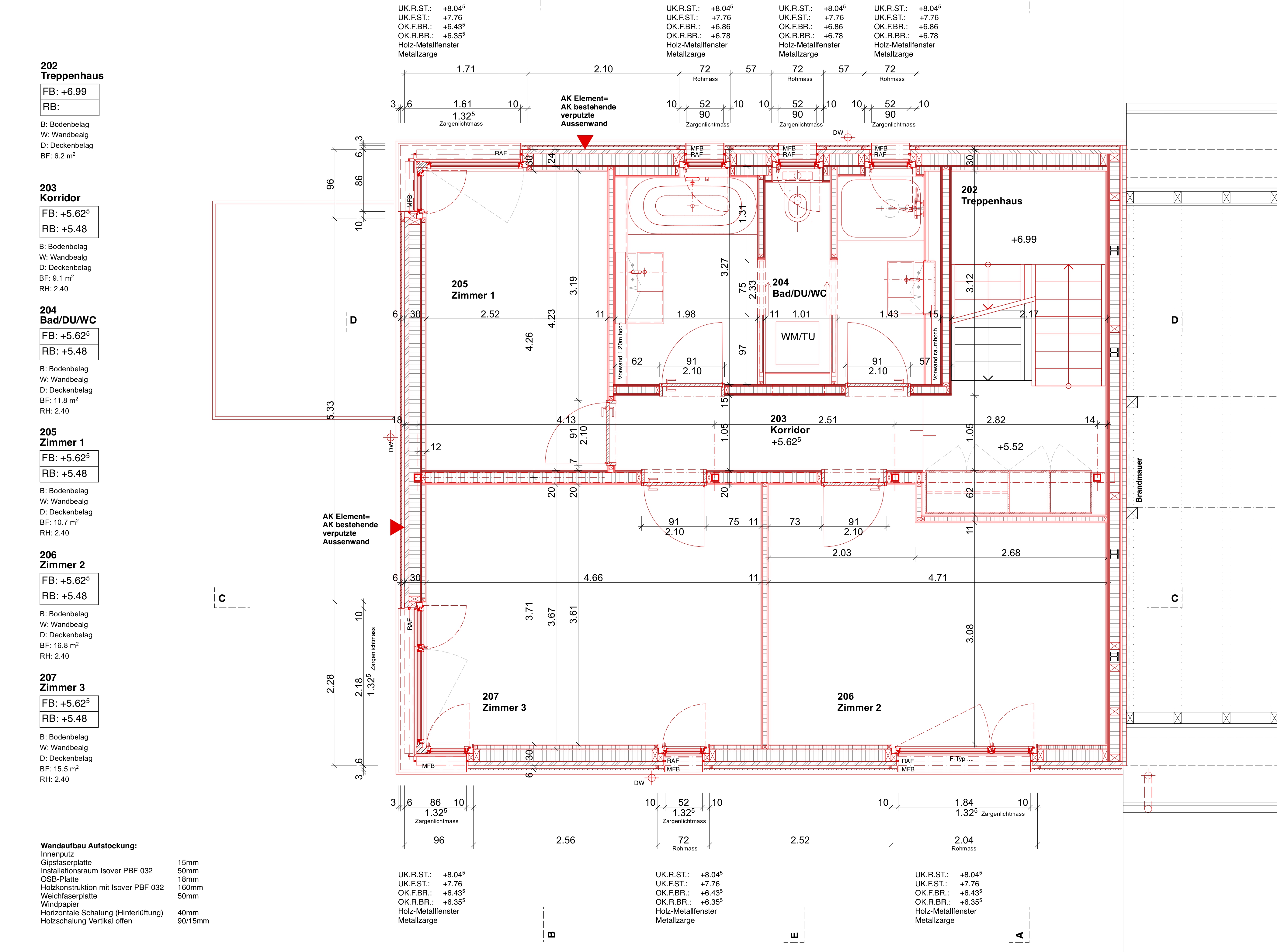
Aufstockung Wohnhaus, Winterthur

Bauprojekt
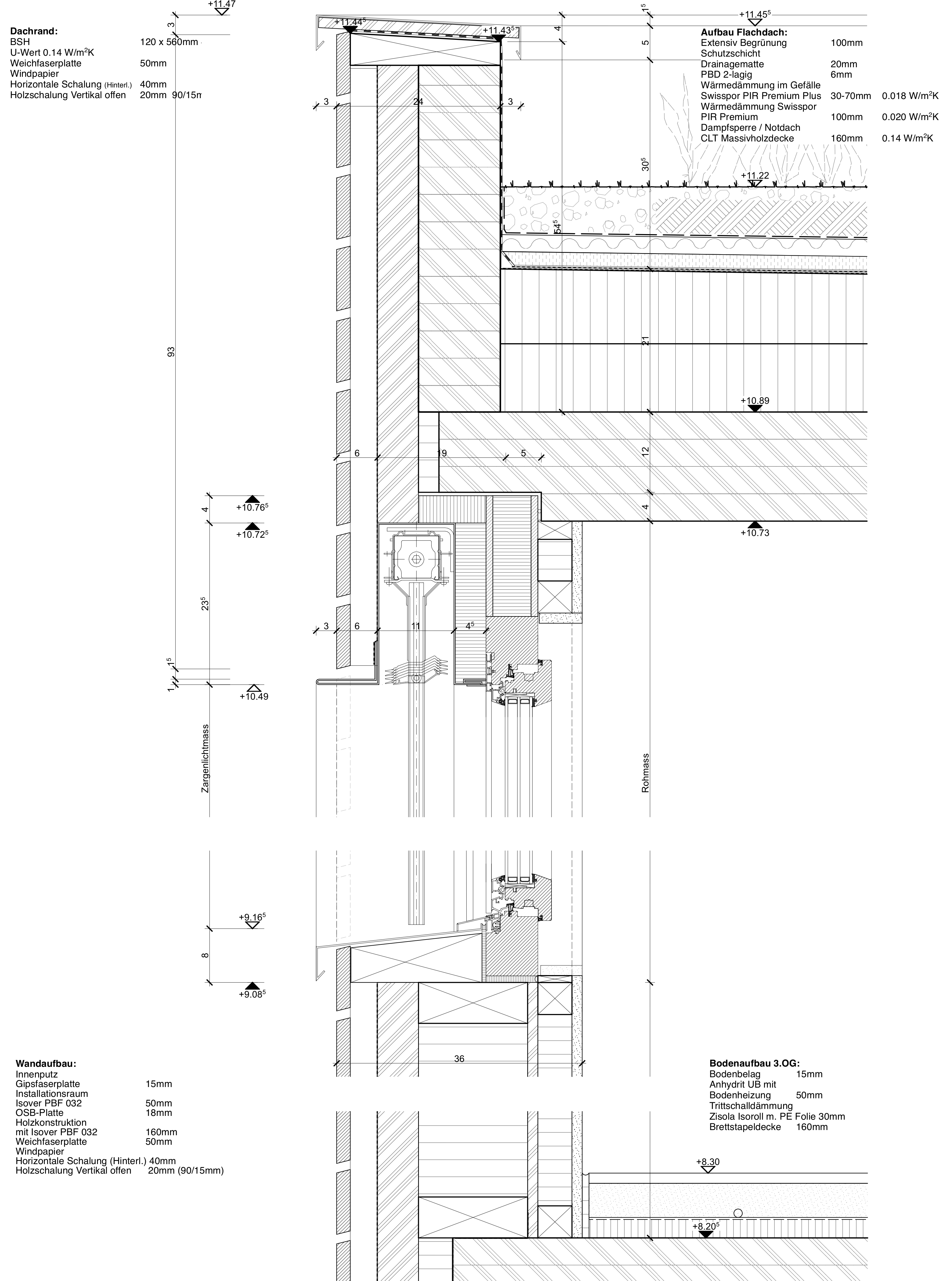
Ausschreibungspläne / Baubeschrieb
Ausführungspläne / Detailpläne


Bovet Bauen und Beraten

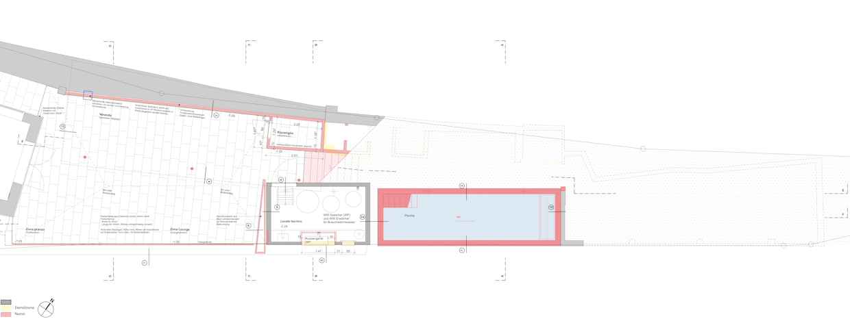
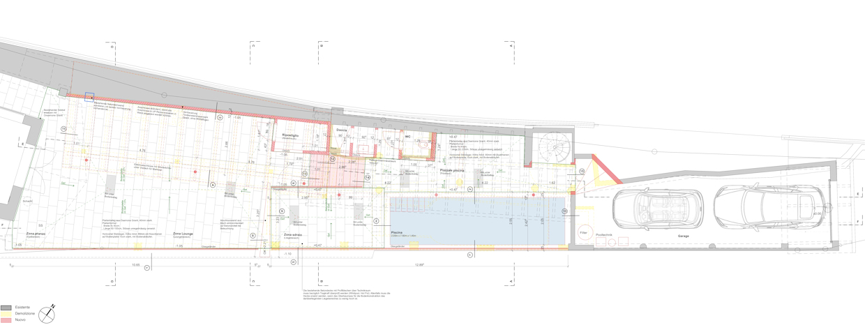
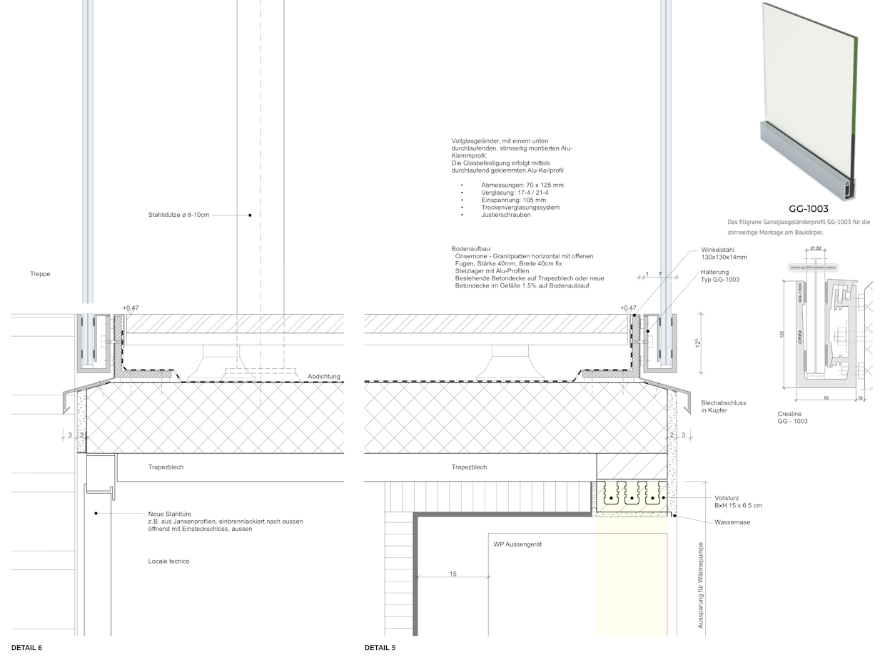
Aussenbereich EFH Ascona

Bauprojekt
Ausschreibungspläne / Baubeschrieb
Ausführungspläne / Detailpläne


Bovet Bauen und Beraten

Umbau EFH Ascona

Bauprojekt



Bovet Bauen und Beraten

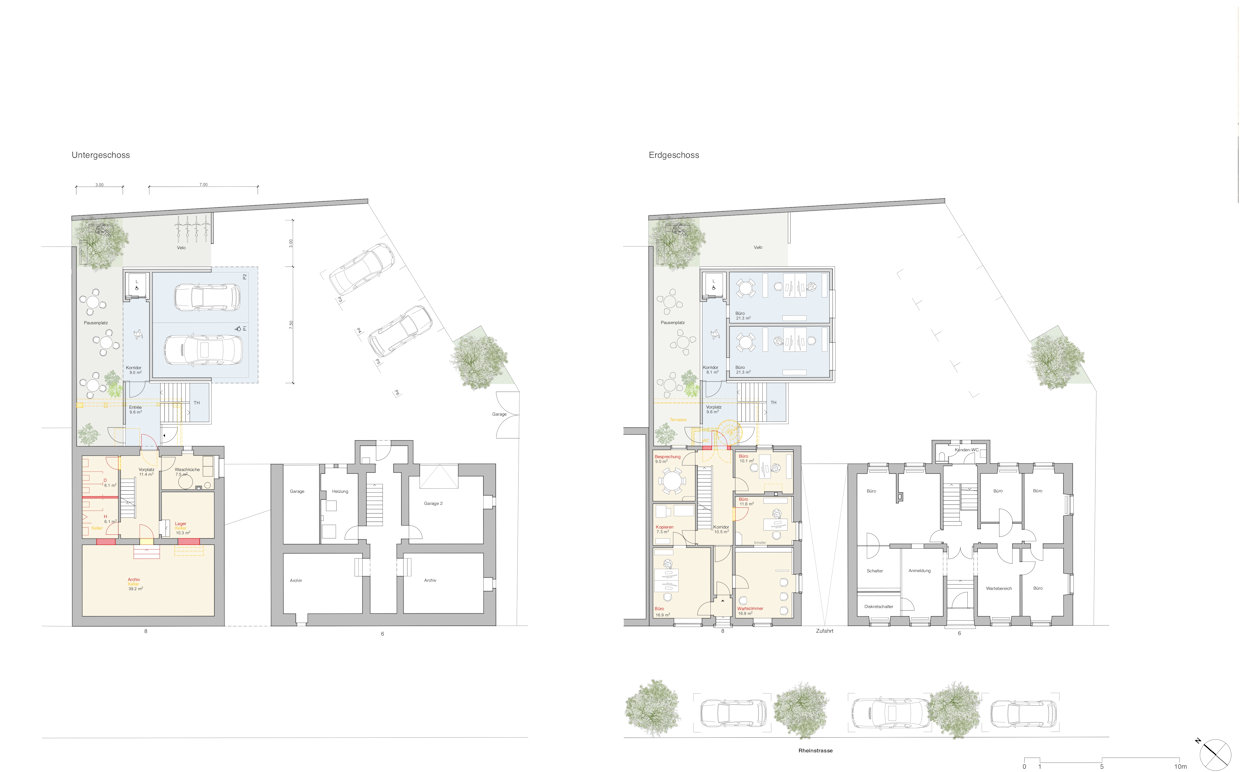
Machbarkeitsstudie Frauenfeld

Studie



Tektur AG - Atelier für Baukultur

Umnutzung Remise Lipperswil

Vorprojekt



Tektur AG - Atelier für Baukultur

Wohnhaus Gerlikon

Vorprojekt



Tektur AG - Atelier für Baukultur

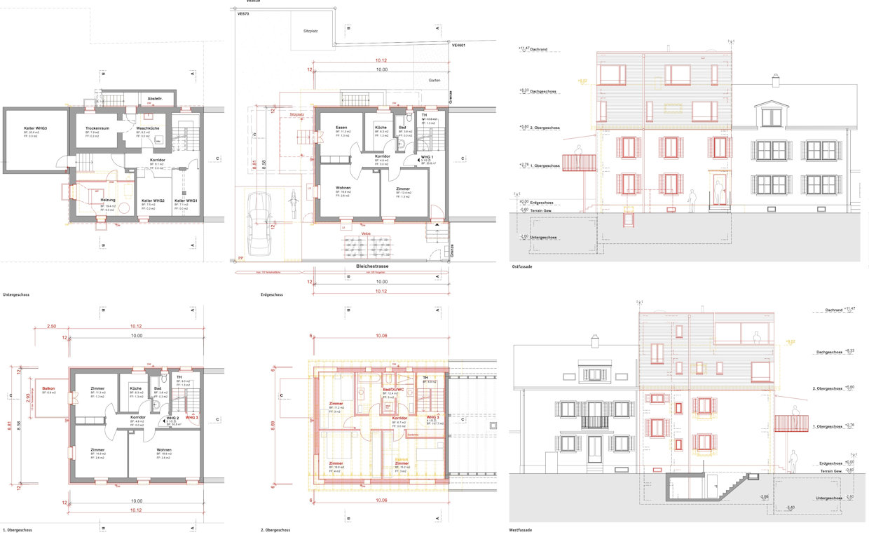
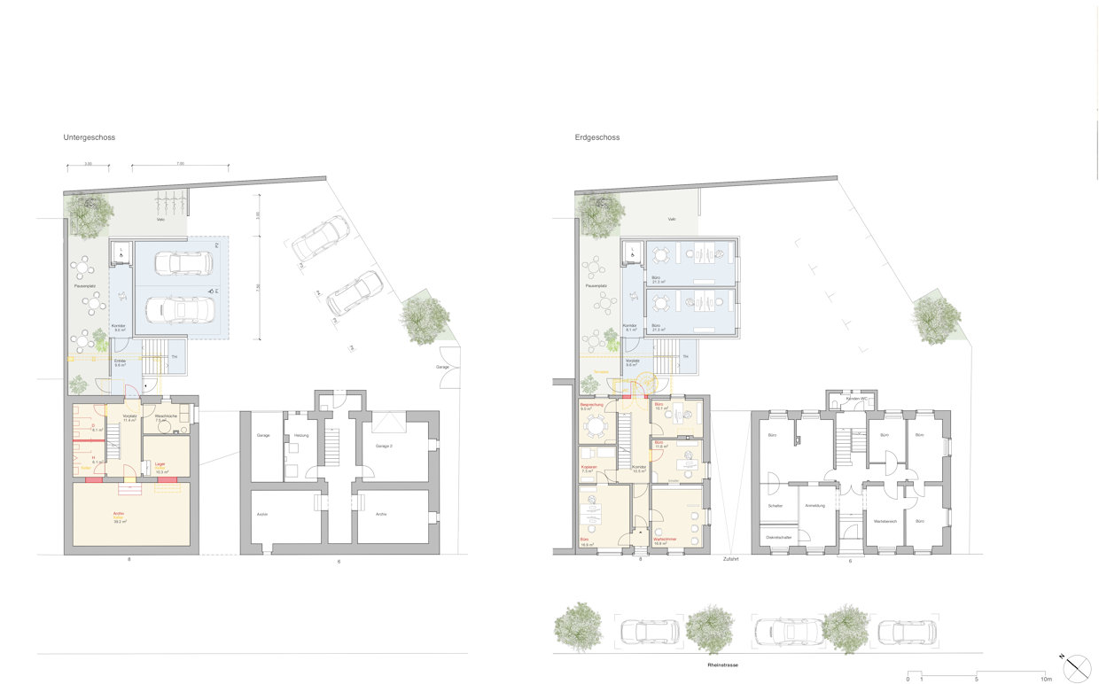
MFH Zürich Seebach

Käuferbetreuung



Nagel AG

Über mich

Ich bin Nadia Ricci, Zeichnerin EFZ und Technikerin, und arbeite seit vielen Jahren mit Begeisterung im Bereich Architektur.

Mich fasziniert, wie aus Linien auf Papier gebaute Räume und Gebäude entstehen – wie aus einer Idee durch Struktur, Präzision und sorgfältige Planung architektonische Qualität wächst.

Neubauten, Umbauten oder Sanierungen begleite ich mit technischem Verständnis und einem klaren Blick für Details. Saubere Planstände, nachvollziehbare Unterlagen und eine verlässliche Zusammenarbeit sind für mich selbstverständlich.

Architektur bedeutet für mich Verantwortung – gegenüber dem Projekt, den Beteiligten und dem gebauten Ergebnis.

Gerne unterstütze ich Sie bei Ihren Projekten.

Ich freue mich auf Ihre Anfrage.



Kontakt

contact